Edward Alleyn House
Client: Dulwich Almshouse Charity
Value: £2.6m
Time: Ongoing
Status: Tender
Location: Dulwich, London
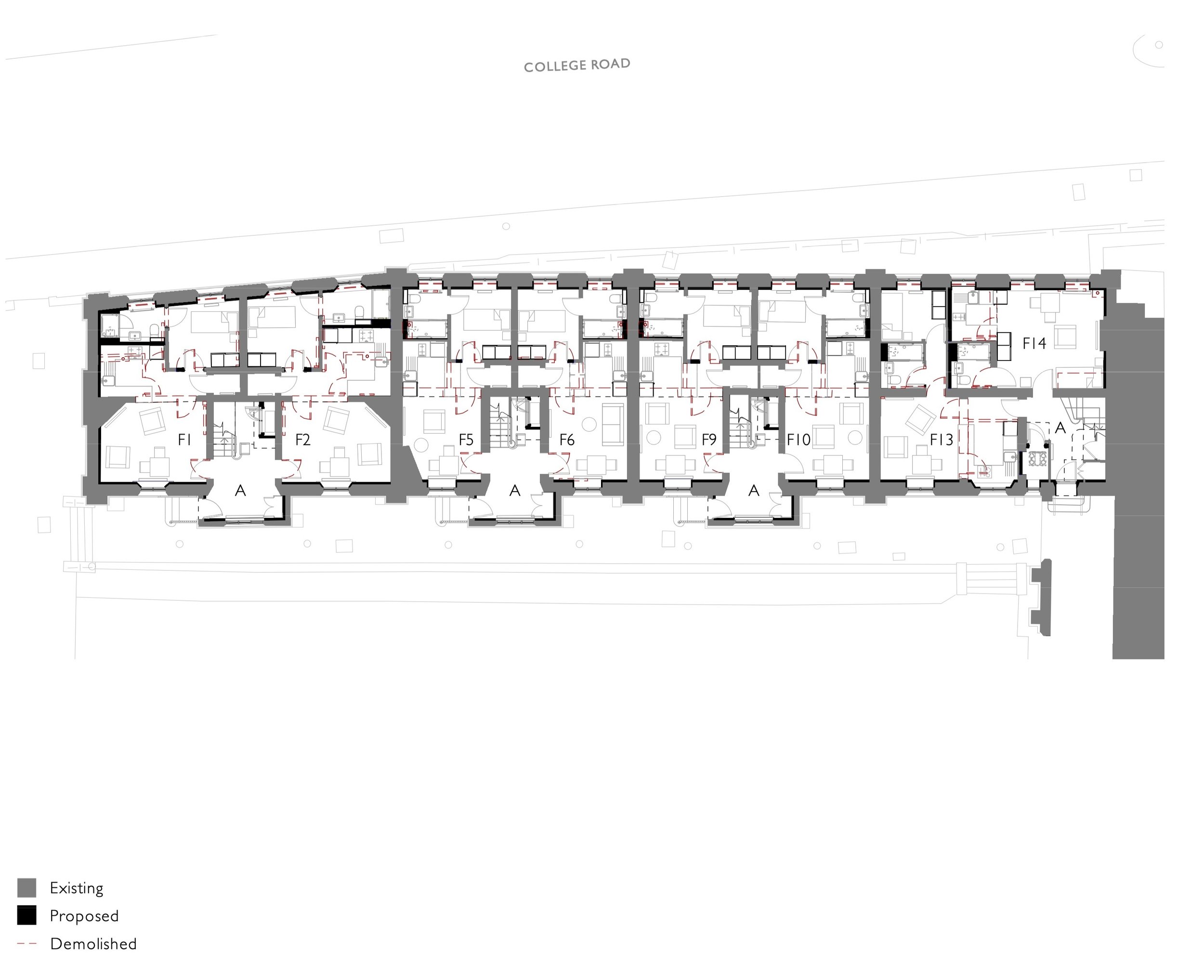
Edward Alleyn House is a Grade II Listed Almshouse in Dulwich Village. The original building was constructed in 1739 and it has been renovated several times during its long history, most recently in the 1980s.
Our work is to renovate the kitchens, bathrooms and living spaces, to upgrade the heating system from gas boilers to Air Source Heat Pumps located in the attic, add a Mechanical Ventilation Heat Recovery system and add replacement windows. We are also internally insulating the building using breathable natural woodfibre insulation and lime plaster, respecting the historic fabric and bringing it into the 21st century.
The project includes kitchen and bathroom renovations, new flooring and internal wall insulation.
The designs have been produced in consultation with the current residents and the team at the Dulwich Estate.
“We’re moving out into another block while the work’s done on my kitchen and living room. They’re going to take a wall down and make the kitchen and living room into one space ... it’ll be quite the party place!”
“Living here is brilliant, the community, the location, the people and the peace are the best things about it.”
- Gwen and Freda, residents
New accessible entrance steps will improve the safety of the front doors whilst respecting the historic character of the building.
